Wageningseberg 58
- Vraagprijs€ 425.000,- k.k.
- Woonoppervlakte68 m2
- Kamers3
Beschrijving
Volledig gemoderniseerd en gasloos DRIEKAMERappartement met energielabel A!
Wat ontzettend leuk en passend bij de huidige tijd. Het appartement is helemaal gasvrij gemaakt.
Koken/verwarming en warm water gaat allemaal elektrisch. Er is de afgelopen jaren gekozen voor het plaatsen van een warmtepompboiler en verwarmen door middel van vloerverwarming en airconditioning die zowel koelt als kan verwarmen.
HIGHLIGHTS:
– Vernieuwde high end keuken 2023 met spoel en kookeiland en o.a. quooker, inductiekookplaat met geïntegreerde afzuiging, oven, slimme vaatwasser en klimaatkast
– Grotendeels voorzien van vloerverwarming (2023)
– Met glad stucwerk afgewerkte wanden en plafonds (2023)
– Grote ramen over de volle breedte van het appartement zorgen voor veel lichtinval
– Balkon op het zonnige westen
– Airconditioning aanwezig (2021)
– Verzorgde badkamer in lichte kleurstellingen
LOCATIE EN OMGEVING:
Het appartementencomplex uit 1992 ligt in de wijk Lunetten.
Het is een groene wijk, maar toch dichtbij de stad. Daarnaast heeft het een eigen winkelcentrum met meerdere supermarkten, sportgelegenheden en een eigen station waarmee je binnen enkele minuten in het stadscentrum van Utrecht bent.
Naast de trein zijn de busverbinding en snelwegen (A12 en A27) op steenworp afstand waardoor je snel onderweg bent.
Aan het eind van de Wageningseberg vind je het Beatrixpark waar je heerlijk kan wandelen, picknicken, schaatsen en ontspannen.
Ook zijn Rhijnauwen en natuurgebied Amelisweerd op fietsafstand.
Kortom, hier geniet je van het beste van 2 werelden: een rustige groene omgeving, maar met de stadse voorzieningen en uitvalswegen om de hoek!
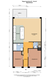
INDELING:
Bij binnenkomst op de begane grond tref je een verzorgde centrale hal, uitgerust met een modern intercomsysteem en een automatische deuropener.
Hier vind je de lift en het trappenhuis, die toegang bieden tot de appartementen én tot de individuele bergingen die handig in de onderbouw zijn gesitueerd.
Het appartement bevindt zich op de eerste etage.
Via de hal kom je in de royale woonkamer -bijzonder licht dankzij de grote ramen en biedt toegang tot het zonnige balkon — een fijne plek om buiten te genieten.
De high end keuken is voorzien van een kook- en spoeleiland en heeft een prominente plaats in de mooie woonruimte.
Aan de voorzijde liggen twee comfortabele slaapkamers die uitkijken op de galerij; beiden zijn ideaal in te richten als slaap-, werk- of hobbykamer.
De badkamer in lichte kleurstellingen is voorzien van een ligbad met douche, aansluiting voor de wasmachine en vrijhangend wastafelmeubel en designradiator. Daarnaast is er een separaat toilet met fontein.
AANVULLENDE INFORMATIE
– Erfpachtcanon is eeuwigdurend afgekocht (erfpachtvoorwaarden AV 1989 gemeente Utrecht)
– Actieve VVE, maandelijkse bijdrage ca. € 228,-
– Woonoppervlakte bijna 70 m²;
– Bouwjaar 1992;
– Liftinstallatie aanwezig
– Inpandige berging aanwezig
– Gratis parkeren rondom het appartement
Deze woning beschikt over een unieke eigen website. Via ‘Download brochure’ kan je op de website komen waar alle informatie is te zien is en is te downloaden.
Kenmerken
| Overdracht | |
|---|---|
| Koopprijs | € 425.000,- k.k. | Status | Verkocht | Aanvaarding | In overleg |
| Bouw | |
| Objecttype | Appartement | Bouwvorm | Bestaande bouw | Dak type | Plat dak | Dak materialen | Bitumineuze Dakbedekking |
| Oppervlakte en inhoud | |
| Woonoppervlakte | 68 m2 | Buitenruimtes gebouwgebonden of vrijstaand | 6 m2 | Oppervlakte externe bergruimte | 8 m2 | Inhoud | 208 m3 |
| Indeling | |
| Aantal kamers | 3 | Aantal slaapkamers | 2 | Aantal badkamers | 1 | Voorzieningen | Mechanische ventilatie, TV kabel, Lift |
| Energie | |
| Energieklasse | A | Isolatievormen | Dakisolatie, Muurisolatie, Dubbelglas | Soorten verwarming | Vloerverwarming gedeeltelijk |
| Kadastrale gegevens | |
| Buitenruimte | |
| Liggingen | In woonwijk | Tuintypen | Geen tuin | Achterom | Nee |
| Bergruimte | |
| Soort | Inpandig |
| Parkeergelegenheid | |
| Parkeer faciliteiten | Openbaar parkeren |
Kennis maken?
Wij staan 24/7 voor jou klaar. Heb je zo spoedig mogelijk hulp nodig of heb je brandende vragen? Wij laten je z.s.m. door de makelaar bellen, of je ‘plant’ een videogesprek in! Heb je geen haast ? Dan kies je gewoon voor een afspraak bij je thuis.

















































































